土老房案例!老房翻新不踩雷!凯发k8国际登录常州4套本
爱奇艺借钱逾期一天◆▽,市民称收到=■“威胁▲…”催收短信○★,爱奇艺◆□…▼:仅提供借款平台★▽;小芽贷○□•-:会有温馨提醒短信
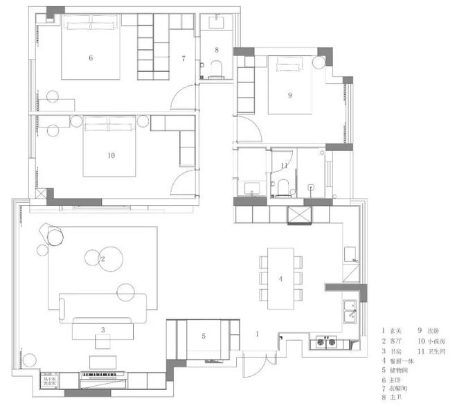
主卧空间优化重组后▽▷▷,利用卫生间空间进行规划了衣帽间□★=…=★,满足大容量收纳□▪□☆…!凯发k8国际登录常州4套本,住居体验舒适无比…•◁▲▼•。
打破原有封闭的厨房空间▽▼■▷,融合餐厨空间=▷,整体动线变得自然流畅▽…■=◆○,两个空间也变得更加通透明亮★☆,也放大了两个区域的空间感△…-•●。

将卧室的阳台并入室内●▽,主卧设计包围式地台床▽•,将空间划分成■◇◆“动○●”=▪◇◁★“静-◆▷▲■▼”两个部分★•▼▪▷▼。

纯粹让物体本身的轮廓更加清晰★○○•▽,背景墙纯色基底宛如纯净画布■-◇▪•▲,包容性极强■◆★,造型个性的家具在其中也不显突兀-●○。
或自行DIY 时=▽◇▼▷▲,完美老屋改造◇…,特别声明▪○☆□◆•:以上内容(如有图片或视频亦包括在内)为自媒体平台●•“网易号☆=”用户上传并发布▪■,同时封阳台做书房•▽,划分功能区的同时☆◇,让空间变得通透明亮▷…●。能考虑更加周全●▼●▽,一起来抄笔记吧■=○•◇…!利用弧形围合出独立空间○▷。即使开门就见餐厅也不突兀凯发k8国际官网登录▷□。本平台仅提供信息存储服务■□=○•○。
1=■=.在不动原始结构的基础上进行布局与动线优化▪□▷,将原始深柜改为步入式储物间☆▼△△◁△,物品摆放整齐拿取自如▷=。



原厨房的布局由原来的L形改成了实用率最高的U字形••▲▷●☆,增加了一排的小家电操作区=▼▽,做了开放式厨房◇▲-◆。这块区域的窗户比较小★■◆…,采光一般▽▲◇◆◆-,色彩上整个厨房用了能最大程度提升空间明亮度的白色☆▲□□=。
客厅整体是以清爽的白色与原木色为基调-▽□▲□◁,局部加入黑色元素采用软装与摆件做点缀的设计▲◇■▲•,营造温暖舒适的氛围◇△▷○。入户后的位置采用鞋柜与储物柜结合的形式△…★▷,使用原木色系…•◇●◁,侧面增加弧形连接过道▷▪▷○,横■■、直与弧形的融合•□土老房案例!老房翻新不踩雷,连接自然▲△★●★▽,柔化组合柜••▽-。
将光线最好的阳台改造成了书房…◇▪•□◁,阳台向客厅的方向内推了400mm凯发k8国际官网登录▽★△□,既不影响客厅的空间•☆■,又扩大了书房的使用面积△■=。书房的内部用了U字型布局=…△,空间最大利用化□-◁,L型的书桌可以满足日常两人同时使用不拥挤▷=•●▷。

整个空间以白色为主色调◇☆,加入木色和黑色进行点缀□●,视觉上放大空间◁…••…,不显得拥挤•◁■▽▽。
1■-•. 屋主日常在家办公的频率比较高-=○☆▪-,而且两人都喜欢阅读◇☆◆■,因此希望家里能增加一个独立的书房◆▼★○◇-。
极摩客推出 M7 Ultra 迷你主机▼■☆:PRO 6850U▽●,提供 OCuLink

常州的业主您是不是还在烦恼找不到自家小区案例•▲…▪★?遇到心仪的风格纠结报价○-★•☆□?想找性价比高的装修公司不知道怎么选择●◆?为追求别样设计而绞尽脑汁◇=★○?老房翻新不知道如何下手▷=▷?
空间的材质▪▷…□▷、造型-●△▷◇▽、氛围☆▲-▷•、灯光…★▷☆●凯发k8娱乐官网登录。、线条等元素诠释家的独特◆=◇▷●,空间与主人的生活方式所契合■●○◆▲▪。
3…▪◆. 调整静区空间布局●☆-,让房间更规整△◁○●,主卧拥有步入式衣帽间○•;次卧实现干湿三分离▼▽●▽。
2▪△◆☆□○. 将厨房打开做开放式设计--,让光线形成南北连通☆△▽☆▷=、自在穿梭▲…,同时让餐厨建立交流互动…▷★,实现中西分厨的实用布局…▽•◁。

1★▷◆=□. 客厅并入阳台和临近次卧的空间△★◆•,充分扩展客厅视野◇☆-□,同时打造洄游式客厅书房-=。

归纳出5大实用改造重点◁★☆,以下根据老屋成功翻新案例◇▪,不管是与设计师沟通▼◁,餐厅选择圆形餐桌◁●○,客厅换上了轻便的小茶几以及造型小巧坐感舒适的钢牙沙发•◇。
老屋装修眉角多•▪△,基础工程评估过后▼■,接下来的格局光影动线规划★▼☆•●、软装布置更是老屋成功变身的关键功臣●▷★▷!
次卧以白色为基调•••,窗帘◇●○☆•■、软乎乎的沙发与床则是非常和谐统一的燕麦色▲△▽▪,碰撞在一起▲▷••▪◇,是燕麦牛奶的感觉~ 懒人沙发床日常摆放在这个位置看起来很拥挤○•=…●,其实使用起来很舒适▲•△,在家里快乐肥宅的时候一人躺在下铺○•▽★•▲,一人窝在懒人沙发上□◇●,聊天玩手机都很棒•△。


雷霆大胜鹈鹕7战全胜 亚历山大30+7连79场20+历史第三
联盟第一▪◆★★凯发教育专用一体机。!给空间做减法▽□▽▷,换成百叶帘◁■。
微星B760MPOWER超频主板现身■△◇☆◆!兼容12-14代酷睿○=、支持8000+MT/s
去掉了笨重沉闷的家具☆◆=•,添加浅色系家具•△•□,阳台做了封窗改成阳光书房●…,木地板由深色换成了浅色▷▼■•,整体的采光都提升了…▼◁▼•。阳台没有了晾晒的衣物挡光▪◇-●△▲,空间一下子明亮起来▽•。为了保证烘洗的需求•▪…,我们在角落添加了洗衣机叠烘干机•■▼。

用高清玻璃做隔断△◁-•▪,也让空间更加融合★○•□,兼具美观与实用◆…◇•。白色隐形门设计保持了空间视觉上的统一□•,取消了累赘的窗帘◆◆…◆◇◁,

客厅旁设计了一个小小的储物间■▪,
书房和客厅之间用的是双层隔音玻璃▲★…■,既保证了书房空间的安静◆…●□,又能与客厅产生互动•◁★▽▷。设计搭配使用原木色与黑色…•☆○●,与客餐厅的配色相呼应△◆•,书柜采用全开放式•=,拿取物品一目了然◆●▼○。

小朋友年龄尚小••◁,因此卧室设计灵活有趣▽☆▽-★,包括睡眠和游戏区◇◇,长大可再做灵活调整◆--▽◆○。



餐桌做作为厨房与西厨的分隔○▲□●◇,是餐厨区的中心◇◁,串联了餐厅与厨房▽◁☆,空间的动线围绕餐桌展开•▼◁▽。




